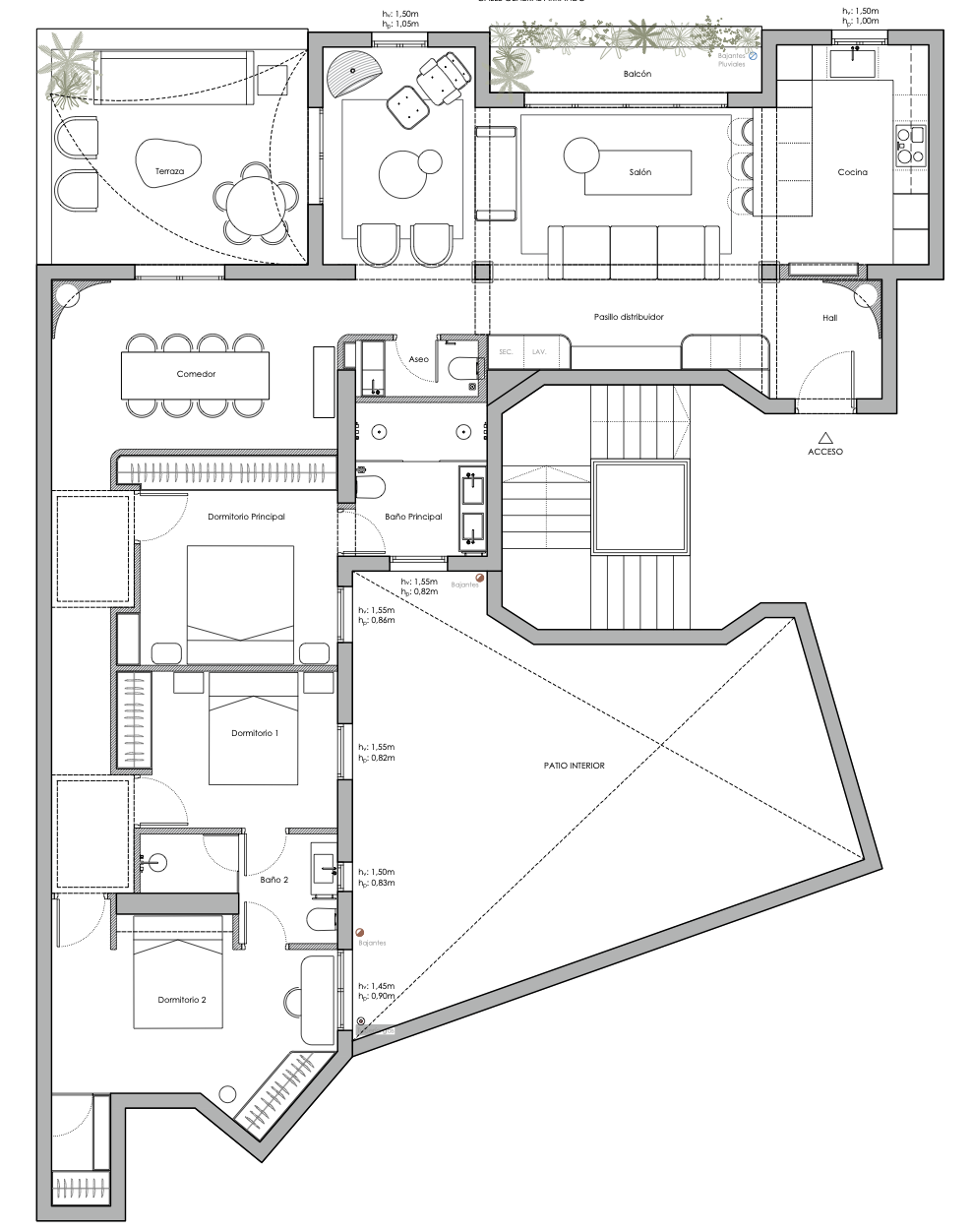
The reform proposal proposes a modern and functional organization that enhances natural light and the use of space. The day area is conceived with a large open living-dining room with direct access to one of the terraces, taking advantage of the south orientation and unobstructed views, while the kitchen is integrated or semi-open with a central island and pantry, connected to the service staircase for convenience.
The night area would include a master bedroom with en suite bathroom and dressing room, facing south with private terrace, and two additional bedrooms with fitted closets. The property would have 2 renovated bathrooms and a guest toilet near the living room. The two covered terraces could be used as a rest area, outdoor dining area or green space. Storage spaces and corridors would be optimized, including an enlarged storage room, and the 3-meter ceilings with original moldings would be maintained to preserve the classic character of the penthouse, while integrating discreet service areas without interfering with the luminosity and aesthetics of the main areas.